Commercial


Woodgrange Dental

Client
Arkh View
Location
Forest Gate, London
Year
2012
Program
Commercial
Scale
117 Sq m

Concept

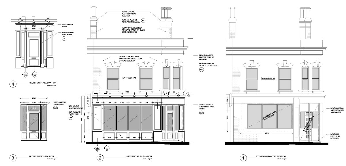
We are currently undertaking several dental surgery refurbishment projects. The project aims to bring together the separate surgery brands under a design language that is consistant to the parent company. The surgeries, located in various locations across the UK, cater to various clientelle within their regions and require specific assessments to their identity.

Woodgrange Dental

Woodgrange Dental Front Street Elevation

Woodgrange Dental Floor Plan

Woodgrange Dental Elevations

Woodgrange Dental Elevations

Woodgrange Dental Reception