Basateen Commercial Offices


Basateen Commercial Offices

Client
Private
Location
Jeddah, Saudi Arabia
Year
2014
Program
Commercial
Scale
7,300 Sq m

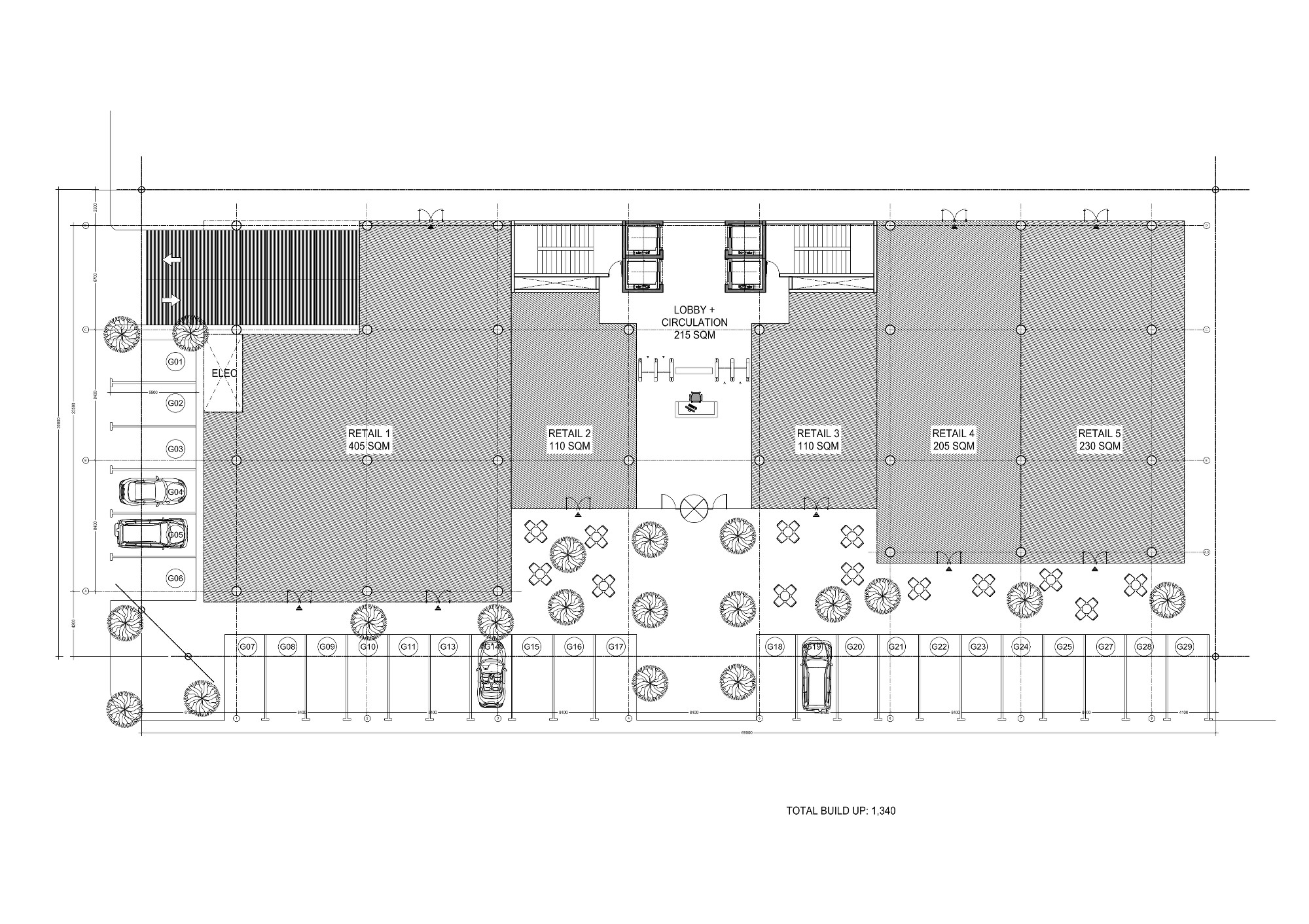
Concept

A commercial driven development in the Exclusive Basateen District of Jeddah, this commercial project aims to create an International Standard of Commercial Office Space to attract international based clients.

Basateen Commercial Offices

Basateen Commercial Offices

Basateen Commercial Offices

Basateen Commercial Offices

The Solution

Still in the early feasibility stage, Carbon and ZAD created various arrangements to the plan and facade to allow the client to choose a scheme that reflected his strong architectural preferences.